Hamilton II – Thornhill Subdivision
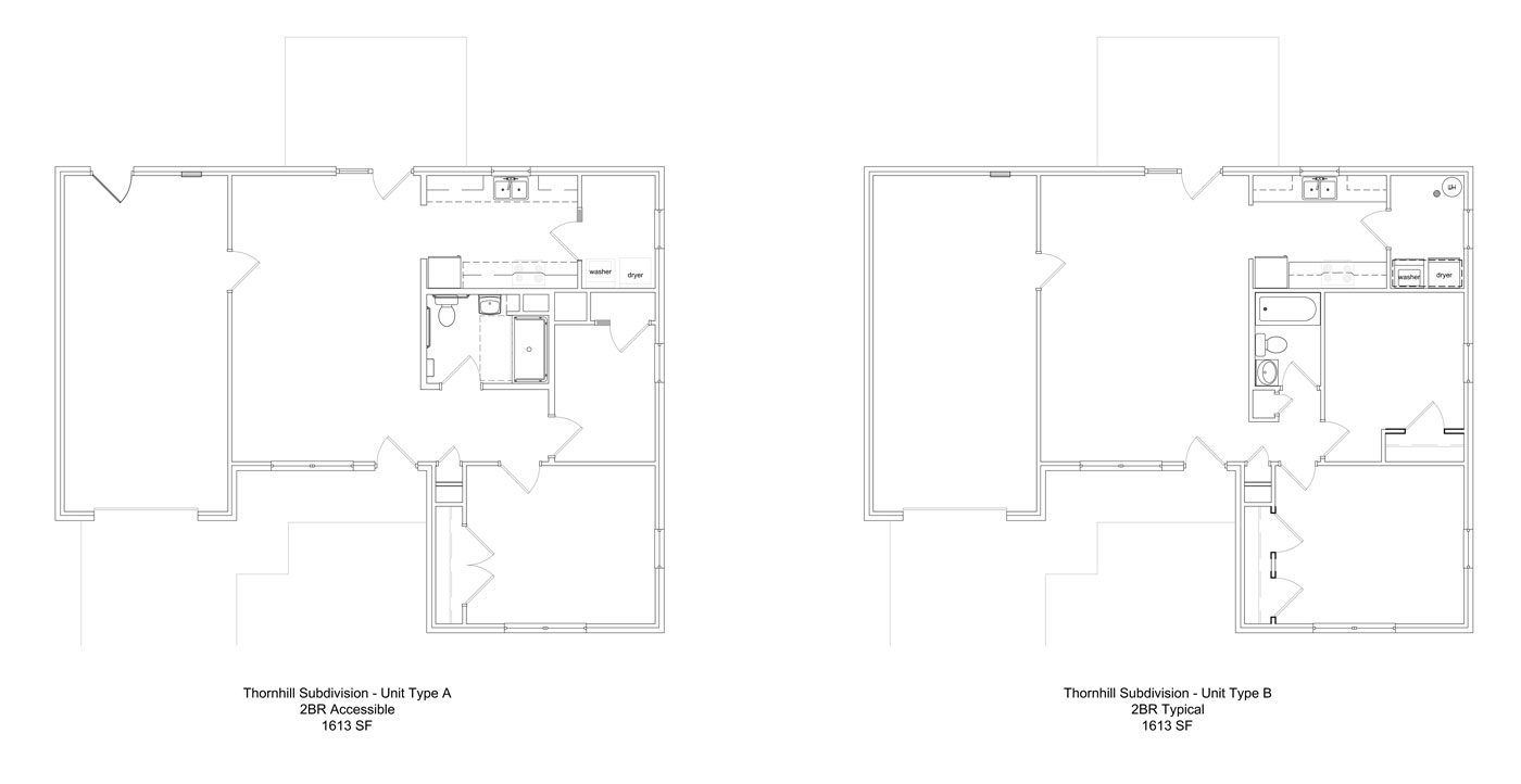
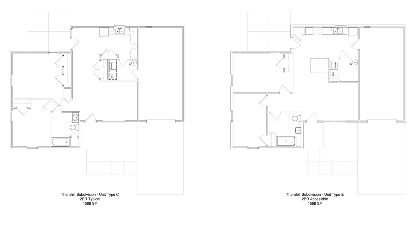
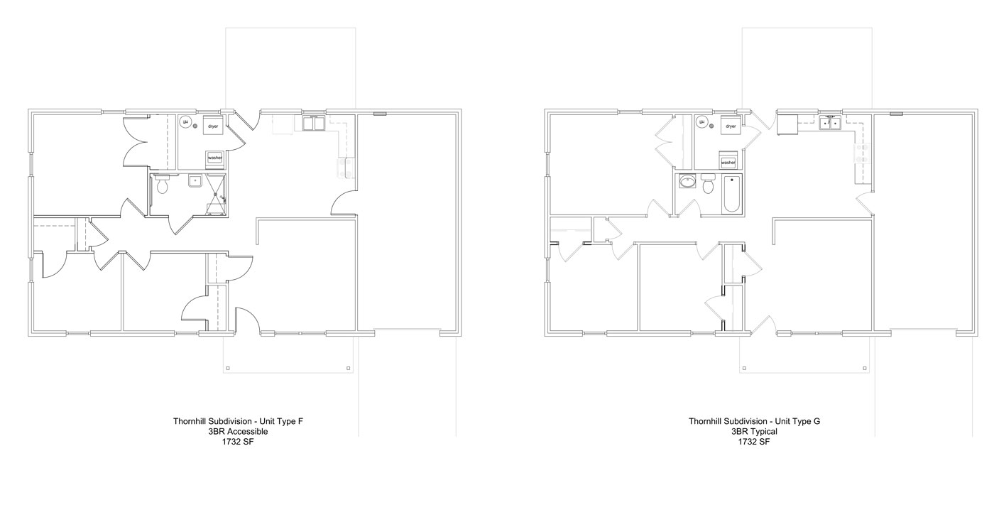
Thornhill Subdivision is a contemporary residential community situated in Hamilton, Ohio. Built in 1982, the property covers 1.7 acres and includes 17 individual buildings offering a total of 17 units. Each home features a spacious, modern layout with two-bedroom (1,355–1,387 sq. ft.) and three-bedroom (1,484 sq. ft.) floor plans designed for comfort and livability. With its small-community layout and convenient location near schools, shopping, and public amenities, Thornhill Subdivision provides an inviting neighborhood experience for modern families.
Property Overview
- Address: Thornhill & Olympus Drive, Hamilton, OH 45013
- Total Units: 17
- Unit Mix:
13 × 2-Bedroom Units (1,355–1,387 sq ft)
4 × 3-Bedroom Units (1,484 sq ft) - Total Buildings: 17
- Site Size: 1.7 Acres
- Year Built: 1982
- Physically Accessible Units: Yes
- Contact: (513) 896-4411 | butlermetro.org
Floor Plans
(Click the image to view larger)




