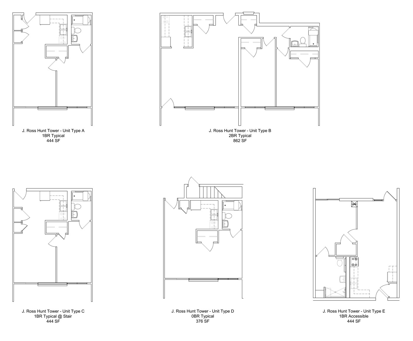
Middletown II – John Ross Hunt Towers
John Ross Hunt Towers is a 125-unit RAD property located at 112 South Clinton Street in Middletown, Ohio. This community features primarily one-bedroom apartments designed for comfortable, affordable living in a high-rise setting. Originally completed in 1972, the tower continues to serve residents through the Rental Assistance Demonstration (RAD) program, ensuring long-term affordability and reinvestment in the property. Centrally located in downtown Middletown, John Ross Hunt Tower provides convenient access to neighborhood amenities.
Property Overview
- Address: 112 South Clinton Street, Middletown, OH 45044
- Total Units: 125
- Unit Mix:
124 × 1-Bedroom Units (497 sq ft)
1 × 2-Bedroom Unit (682 sq ft) - Total Buildings: 1
- Site Size: 1 Acre (2 Parcels)
- Year Built: 1972
- Physically Accessible Units: Yes
- Contact: (513) 896-4411 | butlermetro.org
Floor Plans
(Click the image to view larger)


