Middletown I – Concord Green
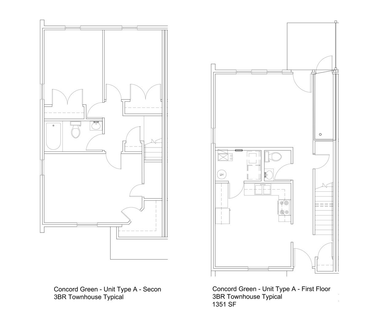
Concord Green is a small, family-focused community located in Middletown, Ohio. Built in 1975 and modernized in 1996, this development sits on a 0.7-acre site and includes 3 buildings housing a total of 12 three-bedroom units, each measuring approximately 2,000 square feet. Designed with families in mind, the property offers spacious, home-like layouts in a close-knit neighborhood environment.
Property Overview
- Address: Concord Avenue, Middletown, OH 45044
- Total Units: 12
- Unit Type: 3-Bedroom (2,000 sq ft each)
- Total Buildings: 3
- Site Size: 0.7 Acres
- Year Built: 1975
- Last Modernization: 1996
- Physically Accessible Units: Yes
- Contact: (513) 896-4411 | butlermetro.org
Floor Plans
(Click the image to view larger)


