Hamilton II – Jackson Bosch
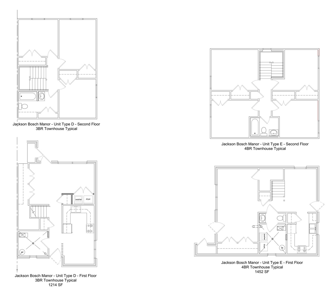
Jackson Bosch Homes is a family-oriented residential community located in Hamilton, Ohio. Built in 1981, this development spans 2.2 acres and includes 13 buildings featuring a total of 33 units. The property offers a balanced mix of spacious floor plans, including two-bedroom flats (840 sq. ft.), two-bedroom townhouses (1,008 sq. ft.), three-bedroom units (1,218 sq. ft.), and four-bedroom units (1,392 sq. ft.). Designed for families seeking both comfort and affordability, Jackson Bosch provides an inviting neighborhood setting with ample space and easy access to nearby amenities.
Property Overview
- Address: Petty Drive, Hamilton, OH 45011
- Total Units: 33
- Unit Mix:
10 × 2-Bedroom Flats (840 sq ft)
10 × 2-Bedroom Townhouses (1,008 sq ft)
10 × 3-Bedroom Units (1,218 sq ft)
3 × 4-Bedroom Units (1,392 sq ft) - Total Buildings: 13
- Site Size: 2.2 Acres
- Year Built: 1981
- Physically Accessible Units: Yes
- Contact: (513) 896-4411 | butlermetro.org
Floor Plans
(Click the image to view larger)



