Hamilton II – Henry Long Tower
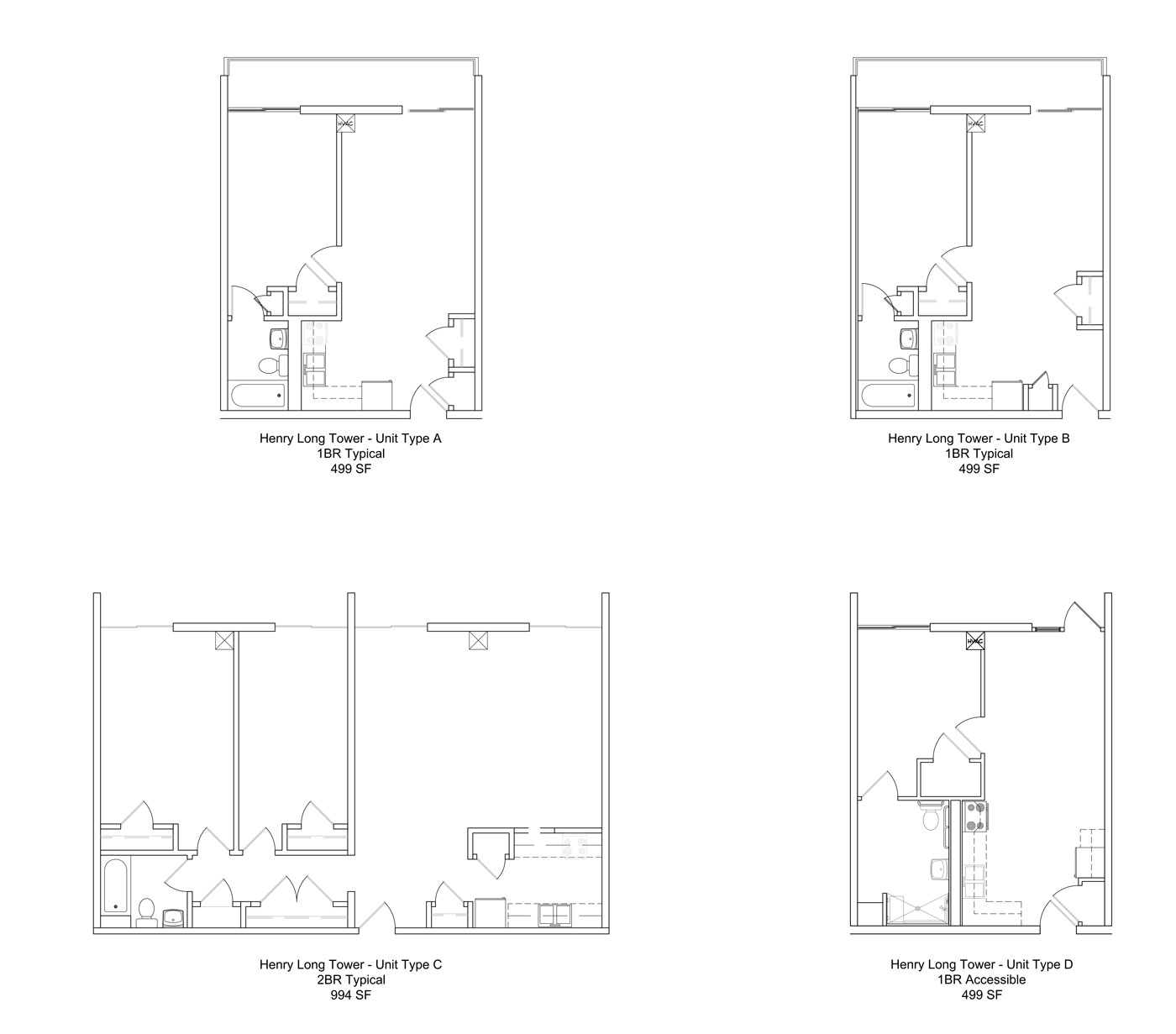
Dr. Henry Long Tower is a well-established residential property in the heart of Hamilton, Ohio. Built in 1974, this high-rise community offers 129 total apartment homes within a single building on a one-acre parcel. Nearly all of the units—128 one-bedroom apartments (525 sq. ft. each) and one two-bedroom unit (880 sq. ft.)—are designed for comfortable, efficient living. The property features physically accessible units and provides a safe, convenient environment for residents within walking distance of local amenities and public transportation.
Property Overview
- Address: 150 South B Street, Hamilton, OH 45013
- Total Units: 129
- Unit Mix:
128 × 1-Bedroom (525 sq ft)
1 × 2-Bedroom (880 sq ft) - Year Built: 1974
- Site Size: 1 Acre
- Physically Accessible Units: Yes
- Contact: (513) 896-4411 | butlermetro.org
Floor Plans
(Click the image to view larger)


