Hamilton I – Riverside Homes
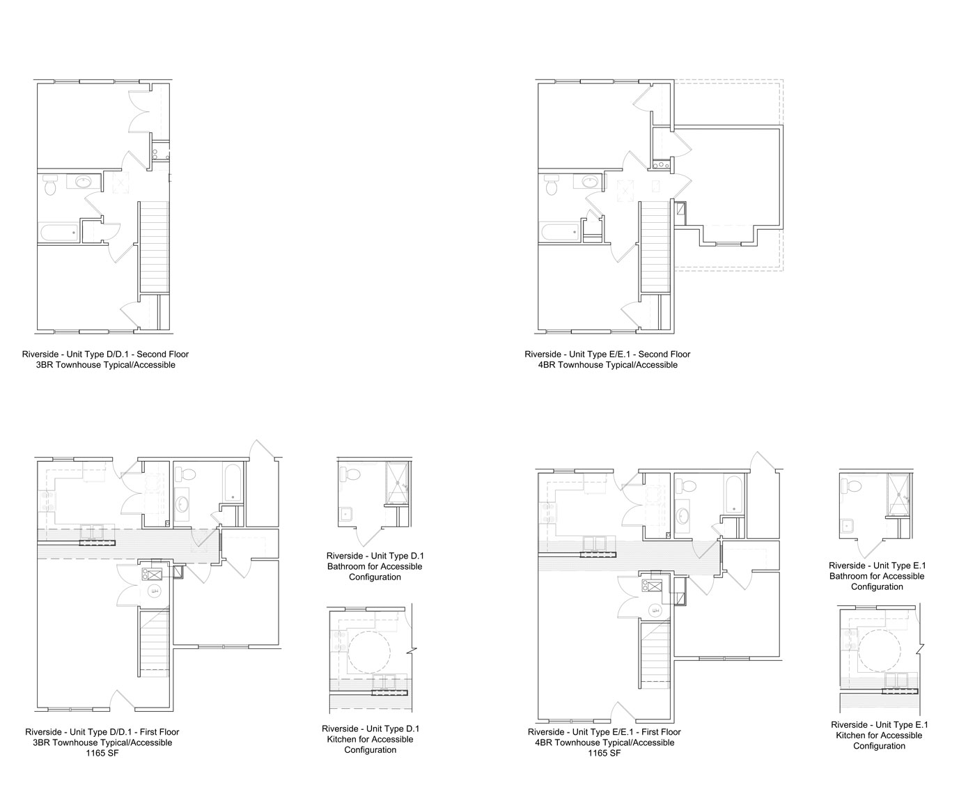
Riverside Homes is a longstanding residential community in Hamilton, Ohio, offering a diverse mix of apartment and townhouse-style homes. Established in 1958, the property spans 1.23 acres and includes 26 buildings with a total of 142 units. The community provides a variety of floor plans, including 12 one-bedroom units (650 sq. ft.), 58 two-bedroom units (884 sq. ft.), 58 three-bedroom units (1,040 sq. ft.), and 14 four-bedroom units (1,300 sq. ft.). With its family-friendly layout, Riverside Homes balances comfort, accessibility, and community connection in a well-maintained neighborhood setting.
Property Overview
- Address: 60 Hanover Drive, Hamilton, OH 45011
- Total Units: 142
- Unit Mix:
12 × 1-Bedroom (650 sq ft)
58 × 2-Bedroom (884 sq ft)
58 × 3-Bedroom (1,040 sq ft)
14 × 4-Bedroom (1,300 sq ft) - Total Buildings: 26
- Site Size: 1.23 Acres
- Year Built: 1958
- Physically Accessible Units: Yes
Floor Plans
(Click the image to view larger)



