Hamilton I – Dayton Lane Gardens
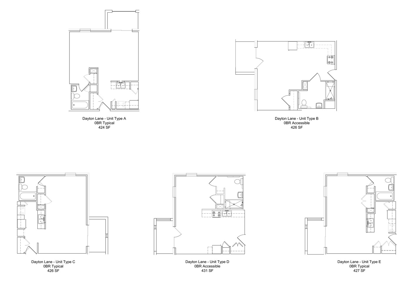
Dayton Lane Gardens is a distinctive property in Hamilton, Ohio, consisting of a single residential building on a 1.9-acre site. Constructed in 1983, this community features 45 efficiency-style units, each offering approximately 483 square feet of well-designed living space. The layout provides a comfortable and functional home environment ideal for residents seeking simplicity, affordability, and convenience in a quiet neighborhood setting.
Property Overview
- Key Facts
- Address: 122 North Sixth Street, Hamilton, OH 45011
- Total Units: 45
- Unit Type: Efficiency (483 sq ft each)
- Site Size: 1.9 Acres
- Year Built: 1983
- Physically Accessible Units: Yes
- Contact: (513) 896-4411 | butlermetro.org
Floor Plan
(Click the image to view larger)


